敝姓鍋-桃園統領

  • Type | 商業空間
  • Location | 桃園市
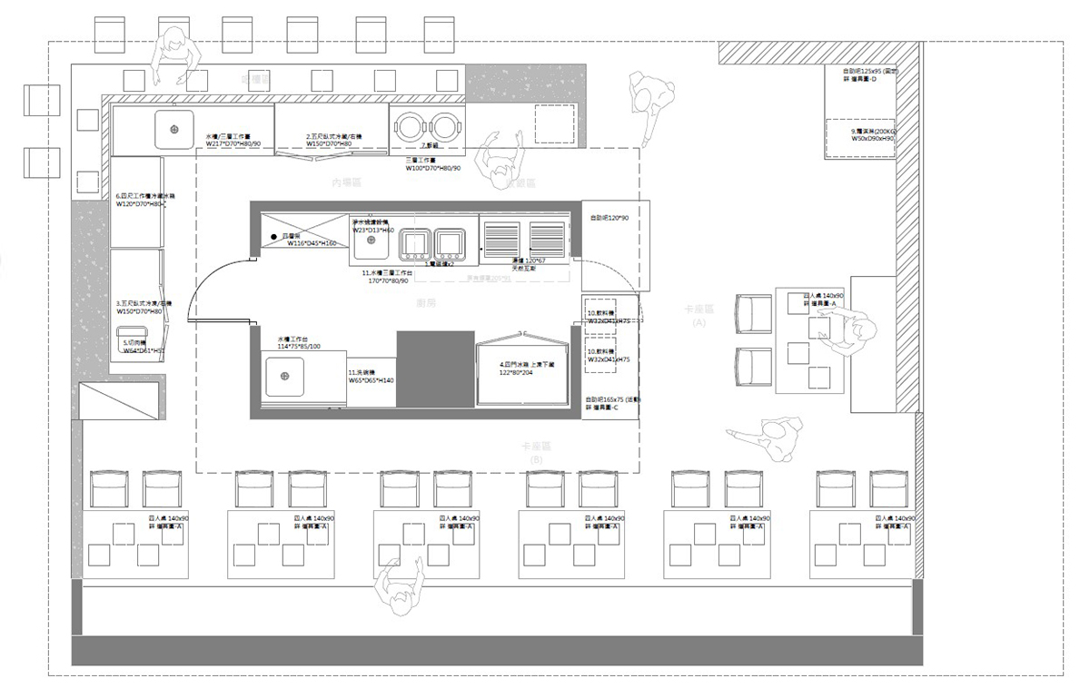
莎若設計_敝姓鍋-桃園統領平面圖
莎若設計_敝姓鍋-桃園統領照片1
莎若設計_敝姓鍋-桃園統領照片2
莎若設計_敝姓鍋-桃園統領照片3

TOP