台中鈺日式料理店

  • Type | 商業空間
  • Location | 台中市
  • Area | 20坪
  • Materials | 大板磚、實木、鐵件、竹子、塗料
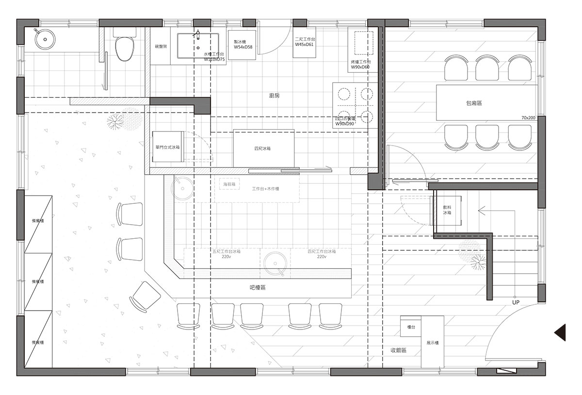
莎若設計_台中鈺日式料理店平面圖
莎若設計_台中鈺日式料理店照片1
莎若設計_台中鈺日式料理店照片2
莎若設計_台中鈺日式料理店照片3
莎若設計_台中鈺日式料理店照片4
莎若設計_台中鈺日式料理店照片5
莎若設計_台中鈺日式料理店照片6
莎若設計_台中鈺日式料理店照片7
莎若設計_台中鈺日式料理店照片8
莎若設計_台中鈺日式料理店照片9
莎若設計_台中鈺日式料理店照片10
莎若設計_台中鈺日式料理店照片11
莎若設計_台中鈺日式料理店照片12

TOP